Mason Realty

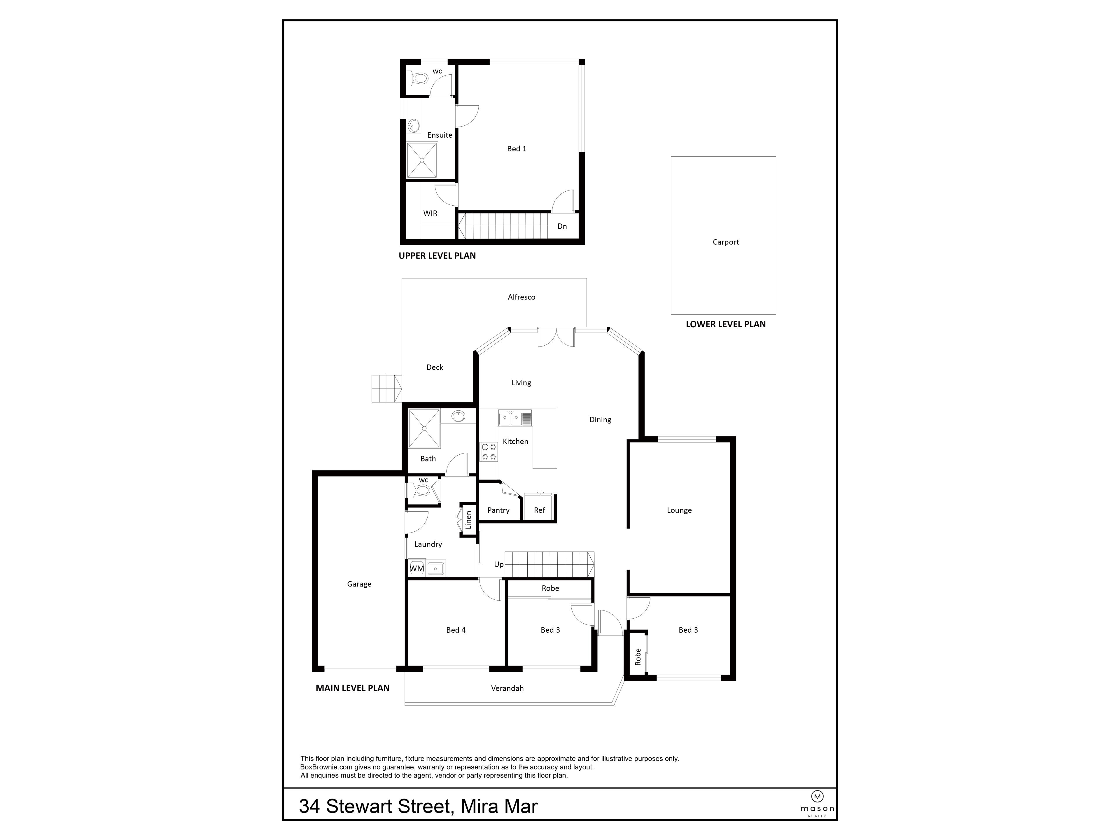
FLOOR PLAN

Property For Sale in Mira Mar