Mason Realty

FLOOR PLAN

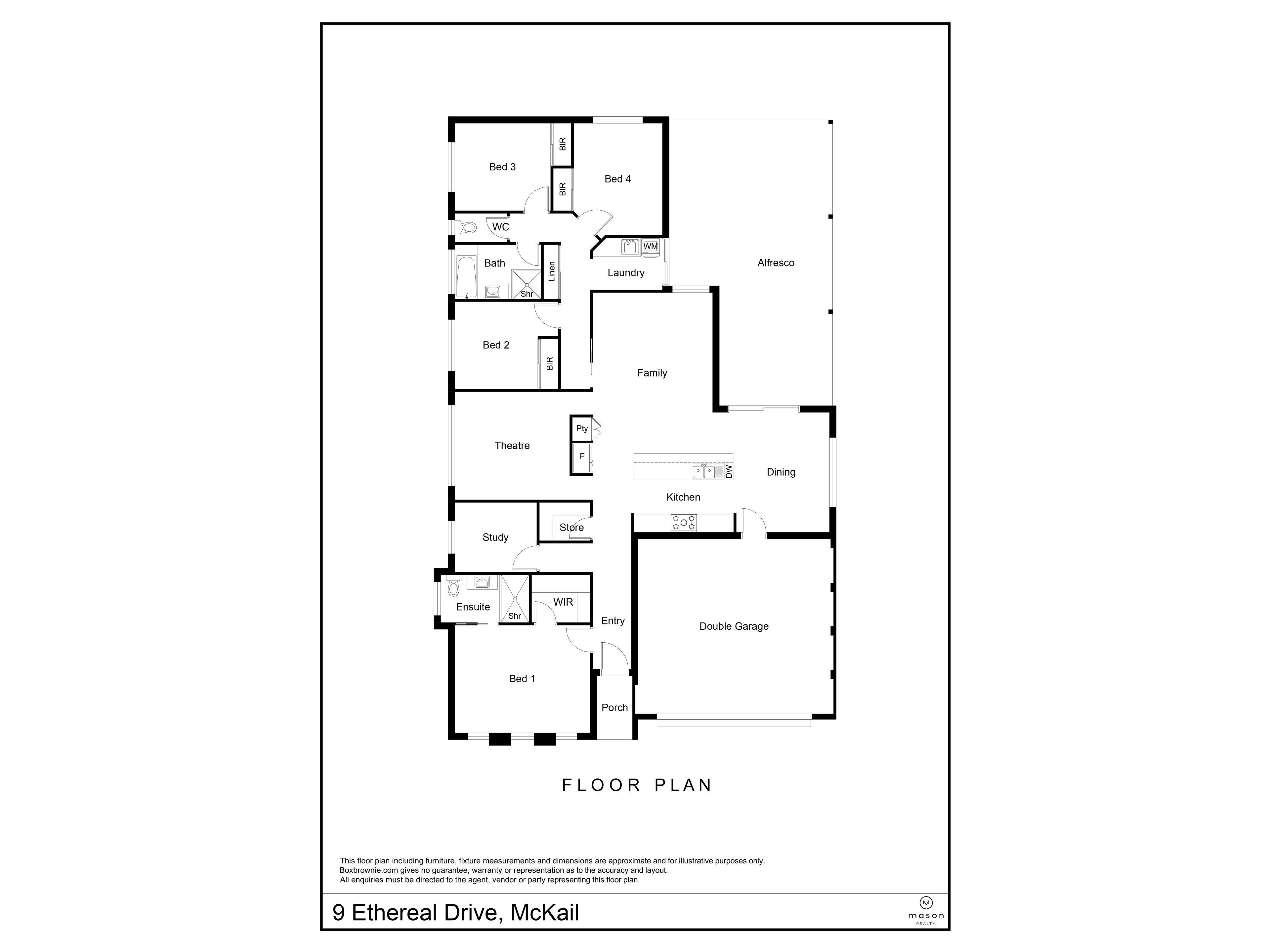
Property For Sale in Mckail